总站 [切换城市] 工长登录|免费注册 |我要装修工长加盟|城市CEO |官方微信
|官方微博
优优工长网 4006630855
您现在的位置:首页 >> 装修百科 >> 其它百科
  装修百科
化粪池原理,化粪池作用
导读 编辑:韩焕平  日期:2017-01-02  
化粪池是一种小型污水处理系统,包括一个水池及化粪系统。污水在进入水池时,细菌会对污物进行无氧分解,并会使固体废物体积减少,再经过沉淀后排出,水质污染程度就会降低。
 目录
·化粪池起源
·化粪池作用
·化粪池工艺原理
·化粪池技术类型
 化粪池起源
化粪池起源
  最早的化粪池起源于19世纪的欧洲, 距今已有100多年的历史。
  在城市生活区内设置化粪池的初始目的是为了积取肥料.随着城市化的进展及环境污染的加剧, 化粪池对保护水体起到了积极作用。现今, 在我国许多大城市, 化粪池为农业生产提供肥料的作用已基本消失, 化粪池已成为环境保护的基本措施之一。
 化粪池作用
化粪池作用
  化粪池是基本的污泥处理设施,同时也是生活污水的预处理设施,它的作用表现在:
1、 保障生活社区的环境卫生,避免生活污水及污染物在居住环境的扩散。
2、 在化粪池厌氧腐化的工作环境中,杀灭蚊蝇虫卵。
3、 临时性储存污泥,有机污泥进行厌氧腐化,熟化的有机污泥可作为农用肥料。
4、 生活污水的预处理(一级处理),沉淀杂质,并使大分子有机物水解,成为酸、醇等小分子有机物,改善后续的污水处理。
 化粪池工艺原理
化粪池工艺原理
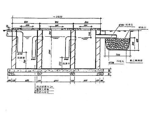
化粪池是一种利用沉淀和厌氧发酵的原理,去除生活污水中悬浮性有机物的处理设施, 属于初级的过渡性生活处理构筑物。生活污水中含有大量粪便、纸屑、病原虫...悬浮物固体浓度为 100~350mg/L,有机物浓度CODCr 在100~400mg/L之间,其中悬浮性的有机物浓度BOD5为50~200mg/L。污水进入化粪池经过12~24h的沉淀,可去除50%~60%的悬浮物。沉淀下来的污泥经过3个月以上的厌氧发酵分解,使污泥中的有机物分解成稳定的无机物,易腐败的生污泥转化为稳定的熟污泥,改变了污泥的结构,降低了污泥的含水率。定期将污泥清掏外运,填埋或用作肥料。要求:化粪池 的沉淀部分和腐化部分的计算容积,应按《建筑给水排水设计规范》(GB50015-2003)第4.8.4~4.8.7条确定。污水在化粪池中停留时间宜采用12h~24h。对于无污泥处置的污水处理系统,化粪池容积还应包括贮存污泥的容积。
 化粪池技术类型
化粪池技术类型
1、泥水混合:
传统化粪池的应用已经有一百多年历史,技术路线是污水和污泥接触的模式,沉积的污泥消化降解产生沼气、二氧化碳、硫化氢等消化气,消化气的上浮作用对污泥产生扰动,消化气对污泥的扰动作用能够让污泥与生物菌群的混合更充分,有助于消化降解。但底部污泥随消化气上升,气泡逸出后,污泥又重新向下沉淀,这些上升和沉淀的污泥又重新污染污水。
  在化粪池污水与污泥接触混合的技术模式下,影响化粪池的沉淀及出水水质,需要延长污水停留时间来改善沉淀效果及出水水质,污水停留时间一般为12-24小时。

2、折叠三相分离
  三相分离化粪池技术是在传统化粪池的基础上,保留了化粪池中泥水混合的优点,增加了"污水、污泥、消化气"三相分离的技术,在化粪池的出水端设置三相分离装置,使出水端的污泥、消化气与污水处理过程分离,避免气浮现象对污水处理的干扰。出水端的沉淀槽参照平流沉淀池技术标准,污水沉淀时间2小时之内。

3、折叠技术对比
化粪池的容积由污水容积和污泥容积构成,三相分离化粪池中污水停留时间4-6小时,相对于泥水混合化粪池中污水停留时间12-24小时,通过缩短污水停留时间而节省了有效容积,所节省有效容积能够存储更多的污泥。
上一篇:铝合金防盗窗
下一篇:水曲柳家具的优缺点
分享到:
文章转载自官方媒体或其他网站,版权归原创者所有。本站转载旨在使信息更广泛地传播以更好地发挥其价值, 如涉及版权等问题,请作者与本网站联系,本网站核实确认后会尽快予以处理。
 
  网友评论:
暂无评论
  发布评论
提示:你最多可以输入120个字!
验证码:  验证码,看不清楚?请点击刷新验证码 请输入验证码
 
预约工长
装修新模式,发布装修招标立省30%。
 
工长装修服务流程
 
业主免费注册发布招标信息
预约工长上门服务
免费获取三套方案与报价
立即享受优优工长网给您带来的
省钱,省心,放心便捷的服务!
立即发布装修招标>>
 
相关文章
·太阳镜品牌排名
·十大粉底液品牌排名
·西服品牌排名
·净水机十大品牌排名
·拉杆箱品牌排名
·汽车品牌排名
·户外品牌排名
·羽绒服品牌排名
·男装品牌排名
·轮胎品牌排名
·羊绒衫品牌排名
·热水器十大品牌排名
·足浴盆十大品牌
·保险柜十大品牌
·羽绒服十大品牌
装修服务
预约工长
学点装修
装修效果图
装修知识
旧房装修
好建材
平台模式
服务模式
法律声明
关于我们
企业介绍
联系我们
工长注册
城市CEO
关 注 微 信
400-6630-855
周一至周六:9:00-18:00
全国客服热线
商务咨询QQ:9617228
豫ICP备2021014483号  版权所有:优优工长  网站所有内容,未经许可不得转载或做其它使用