|
| 广州田心小区装修效果图 |
| 装修面积:115平米 装修费用:半包11.2万 |
| 装修风格:现代简约 日期:2016-06-21 |
|
| 效果图上传人员:王汉书 |
| 效果图作品描述:半包,现代简约风格 |
|
 |
|

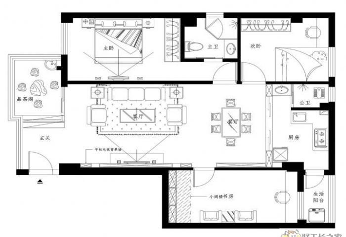
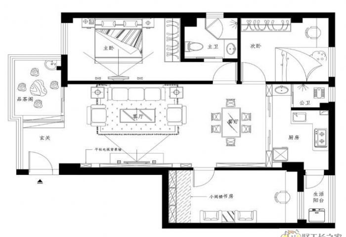
广州田心小区装修效果图图片1 |
|

广州田心小区装修效果图图片2 |
|

广州田心小区装修效果图图片3 |
|

广州田心小区装修效果图图片4 |
|

广州田心小区装修效果图图片5 |
|
|
|
|
|
|
 |
| 1、免费量房 2、免费报价 3、免费设计 |
|
|
 |
工长:王汉书 |
| 广州市-天河区 |
| 案例:9 |
| 关注:3277 |
| 被预约35次 |
|
普通店铺 |
诚信达人2445天 |
店铺已备案 |
装修案例已上传
|
|
预约立即享受优优工长网给您带来的
省钱,省心,放心便捷的服务!
全国统一服务热线:
|
|
|
|