|
| 太原玉门花园G区3号楼装修效果图 |
| 装修面积:120平米 装修费用:半包4.1万 |
| 装修风格:美式风格 日期:2020-04-09 |
|
| 效果图上传人员:李伟红 |
| 效果图作品描述: 水电改造完成后进行水路打压,发现主入户水管在客厅有漏水,物业开发商处理好后进行二次打压合格,方进行瓦工施工,所以千万不能省略水路打压试验0.8Mpa半小时 |
|
 |
|

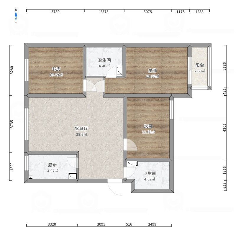
太原玉门花园G区3号楼装修效果图现场户型图,三室两卫 |
|

太原玉门花园G区3号楼装修效果图水电规范布置 |
|

太原玉门花园G区3号楼装修效果图客户增加入户主水管前置 |
|

太原玉门花园G区3号楼装修效果图卫生间墙砖压地砖 |
|

太原玉门花园G区3号楼装修效果图墙面墙固+粉刷石膏找补 |
|
|
|
|
|
|
 |
| 1、免费量房 2、免费报价 3、免费设计 |
|
|
 |
工长:李伟红 |
| 太原市-小店区 |
| 案例:7 |
| 关注:3879 |
| 被预约60次 |
|
热榜店铺 |
诚信达人1594天 |
店铺已备案 |
装修案例已上传
|
|
预约立即享受优优工长网给您带来的
省钱,省心,放心便捷的服务!
全国统一服务热线:
|
|
|
|